株式会社サーテクノコア 電着塗装装置、めっき装置、その他表面処理装置
ANODIZING

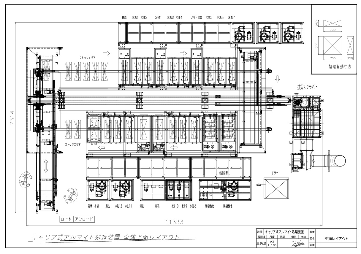
アルマイト処理装置

生産現場のニーズに対して、最適な表面処理装置の「構想」「設計」「制作」から「量産の確立」に至るまで、トータルコンサルティングしたサービスを提供しています。

<トータルコーディネート>

・必要に応じ、処理工程開発から表面処理薬品選定
 → 薬品選定、条件出しのサポート可能
・専用機の臨機応変な設計力
 → 製品、生産数量に対し、最適な装置設計
・生産に必要な周辺機器の選定、または選定と提供
 → 排水処理装置、排気装置、分析装置 等
・日常管理(薬品・条件管理方法)をコンサルティング
・必要な資格、認可取得のサポート
超小型高性能電着塗装装置
キャリア式電着塗装装置
自動車製品
超小型高性能電着塗装装置
キャリア式電着塗装装置